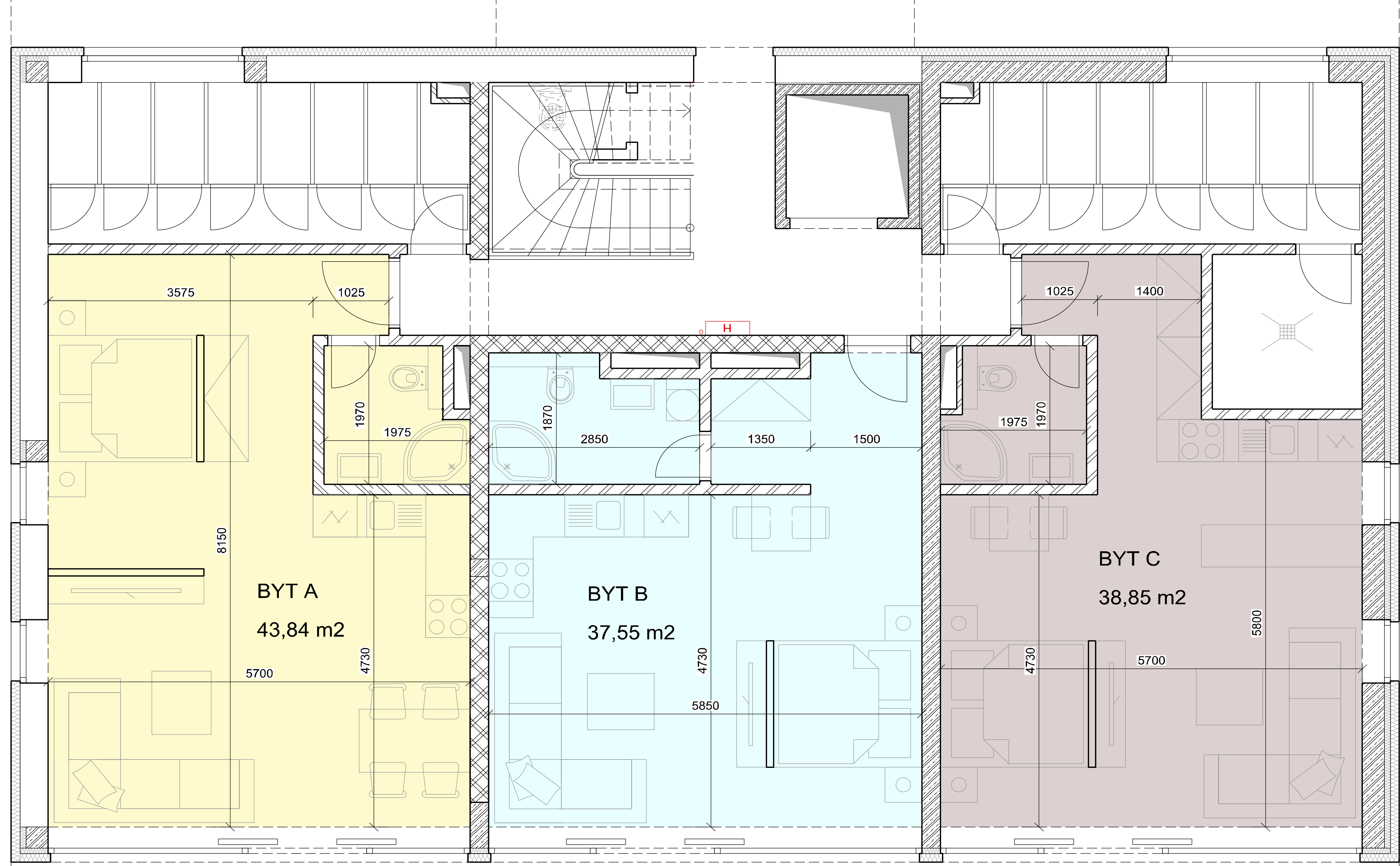
Prehľad zvoleného podlaží
| Podlažie | Počet izieb |
Názov | Vnútorná plocha m2 |
Vonkajšia plocha m2 |
Celková plocha m2 |
Uvádzacia cena bytu s DPH |
Stav |
|---|---|---|---|---|---|---|---|
| 1 | 1 | Apartmán - Priestor A | 43.84 | 0 | 43.84 | 135 300 € | Voľný |
| 1 | 1 | Apartmán - Priestor B | 37.55 | 0 | 37.55 | Na vyžiadanie | Predaný |
| 1 | 1 | Apartmán - Priestor C | 38.85 | 0 | 38.85 | 123 000 € | Voľný |