3i byt - Byt č.7 - I.B

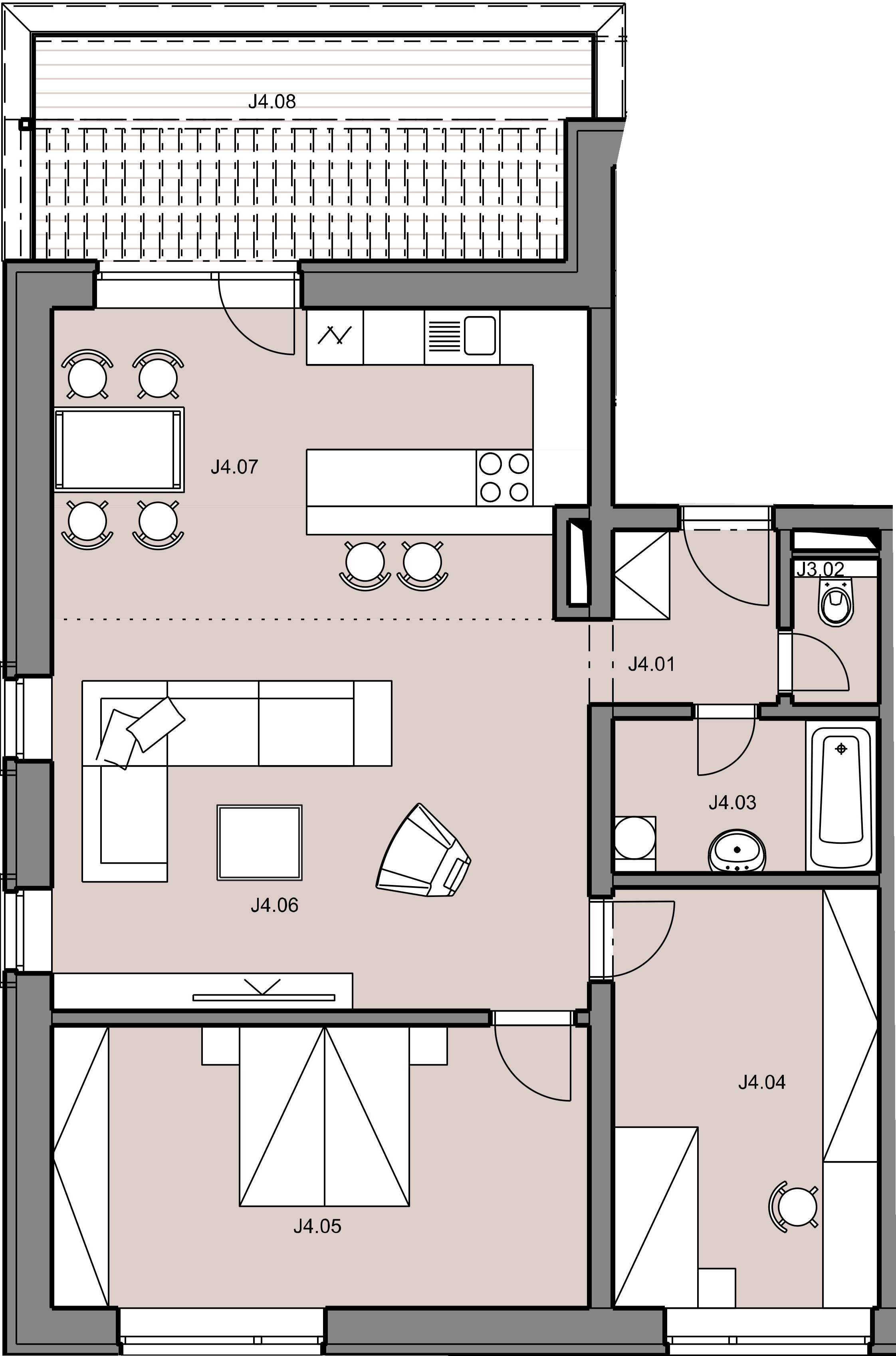
Výmery

  • J4.01 - ZÁDVERIE 3.46m2
  • J4.02 - WC 1.43m2
  • J4.03 - KÚPEĽŇA 4.63m2
  • J4.04 - IZBA 12.6m2
  • J4.05 - IZBA 17.1m2
  • J4.06 - OBÝVACIA IZBA 23.66m2
  • J4.07 - KUCHYŇA S JEDÁLŇOU 18.37m2
  • J4.08 - TERASA 13.65m2
  • KOBKA 1.27m2

Predajná cena 264 000€

3i byt - Byt č.7

  • Stav: Voľný
  • Číslo bytu: Byt č.7
  • Bytový dom I.B
  • Nadzemné podlažie 4
  • Počet izieb 3
  • Vnútorná plocha 81.25m2
  • Plocha balkóna 14.92m2
  • Úžitková plocha 96.17m2

Štandard interiéru bytu

V bytoch nie je inštalovaná kuchynská linka, svietidlá a nábytok. Byty sú zariadené v nasledovnom štandarde:

VCHODOVÉ DVERE DO BYTU

šírky 900 mm, riešené ako 1 krídlové bezpečnostné protipožiarne v oceľovej zárubni, nerezový prah, priezorník, bezpečnostné kovanie a bezpečnostná zámka

INTERIÉROVÉ DVERE V BYTOCH

plné rámové dvere, obložkové zárubne, povrch kvalitná fólia, kovanie

POVRCHOVÉ ÚPRAVY

vnútorné omietky - sadrové gletované omietky v bytových priestoroch, interiérový náter bielej farby, 1 x penetračný náter, 2 x vrchný náter v bielom odtieni

PODLAHY

podlahy sú podľa účelu navrhnuté ako keramické gresové v interiéroch, formát 600 x 600 mm, protišmykové hladké a štruktúrované na balkóne, laminátové parketové lamely v byte,

gresové nášľapné vrstvy na balkónoch a lodžiách,

terasy - vyhotovené z VPC podlahovej dosky, ohraničené celoskleneným zábradlím

betónové mazaniny s protiprašným náterom v pivnici

VYBAVENIE KUCHÝŇ

príprava pre zapojenie elektrickej varnej platne a elektrickej rúry, príprava pre zapojenie umývačky riadu, odsávača pár chladničky a dresu
vnútorné rozvody vody a kanalizácie v kuchyni sú ukončené záslepkami a pachovými uzávermi bez ukončovacích ventilov a batérií

VYBAVENIE KÚPEĽNE

kvalitný rektifikovaný obklad v rozmeroch 300 x 600 mm a 200 x 1200 mm na stenách v kúpeľni a WC do výšky 2,1 m, lišty z nerezu 10 mm

ZARIAĎOVACIE PREDMETY

umývadlo keramické so sifónom a stojankovou batériou s clickclakom
kvalitná vaňa kovová smaltovaná, sifón pre vaňu, batéria sprchová set / alebo sprchový kút s keramickou vaničkou
WC riešené integrovaným podomietkovým systémom Geberit v inštalačnej predstienke, so vstavanou nádržkou, tlačítko, keramická misa WC, sedátko spomaľovacie,
umývadlo so skrinkou a batériou vo WC
príprava pre osadenie práčky, sifón ukončený  záslepkou
radiátor rebríkový v kúpeľni

VZDUCHOTECHNIKA A VETRANIE
kúpeľne a WC s núteným odvetraním

ELEKTROINŠTALÁCIA
bytová silnoprúdová a slaboprúdová rozvodnica, zásuvkové a svetelné rozvody, osadenie zásuviek a vypínačov, domový vrátnik, telefónne a dátové rozvody
pre ovládanie vstupných dverí bude slúžiť elektrický videovrátnik - domáci telefón

KÚRENIE

podlahové kúrenie ovládané priestorovým termostatom, merač tepla ultrazvukový

príprava pre klimatizáciu v bytoch, ukončené pod - omietkovou krabicou

Vizualizácie sú len ilustračné